Location: Cape Town, South Africa
Client: Private
Type: High End residential
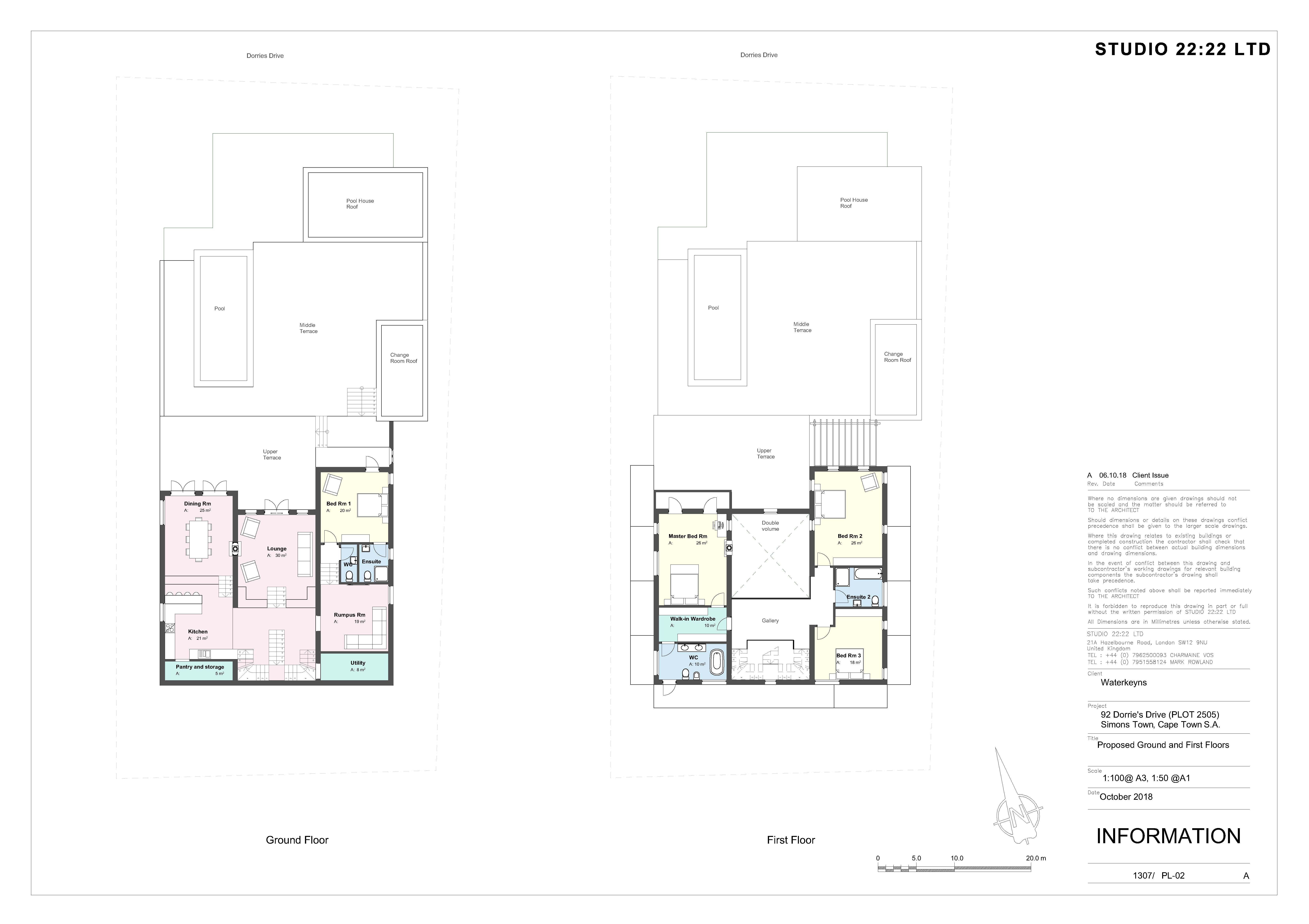
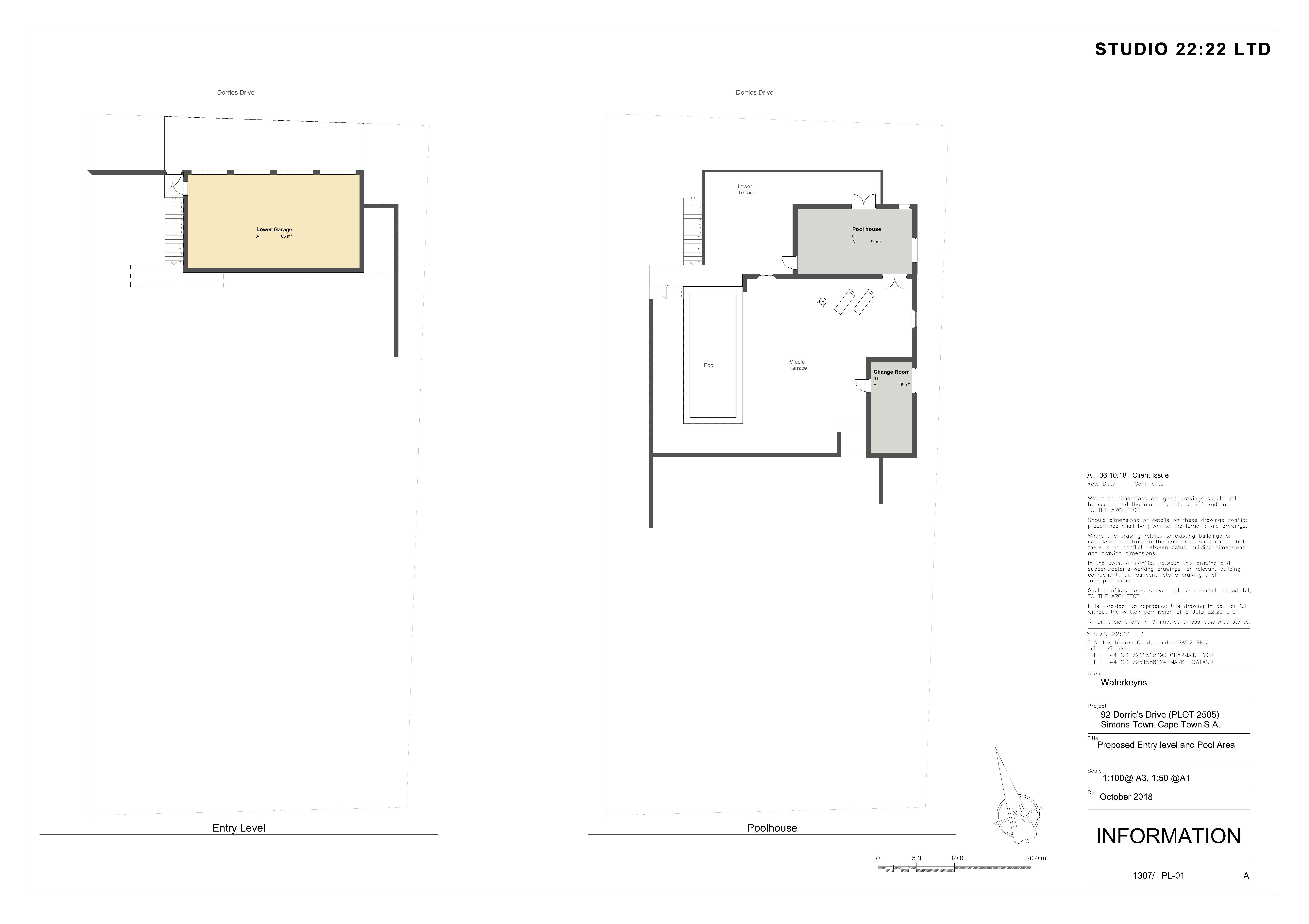
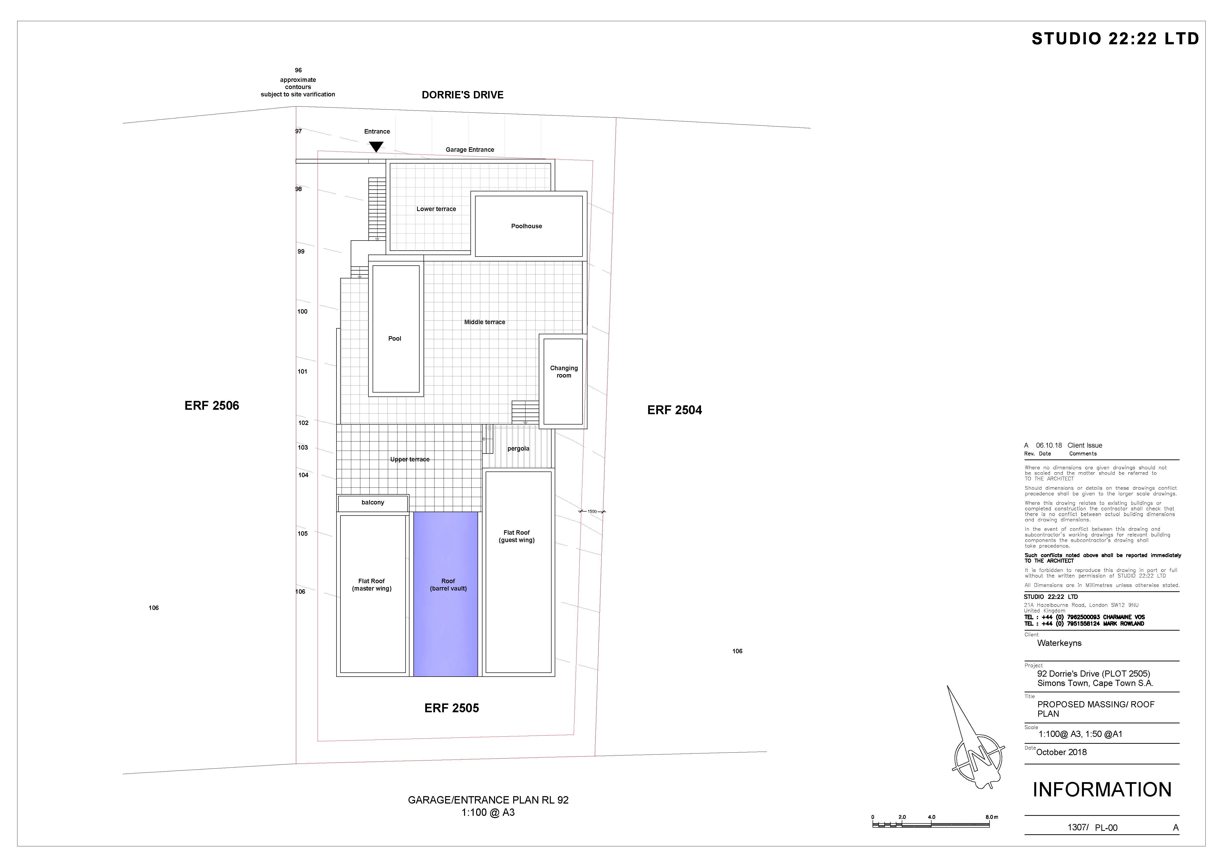
Description: Having spent much time island hopping in Greece, the client wanted to bring some of that magic back to Cape Town. With a staggering >180 degree view, gorgeous sunshine and the natural slope of the mountain, the cascading terraces seemed an effortless fit. We started with the mood-board below to distil the essential elements…
Role: Designer (Studio 22:22Ltd) – design & drawings for planning application









