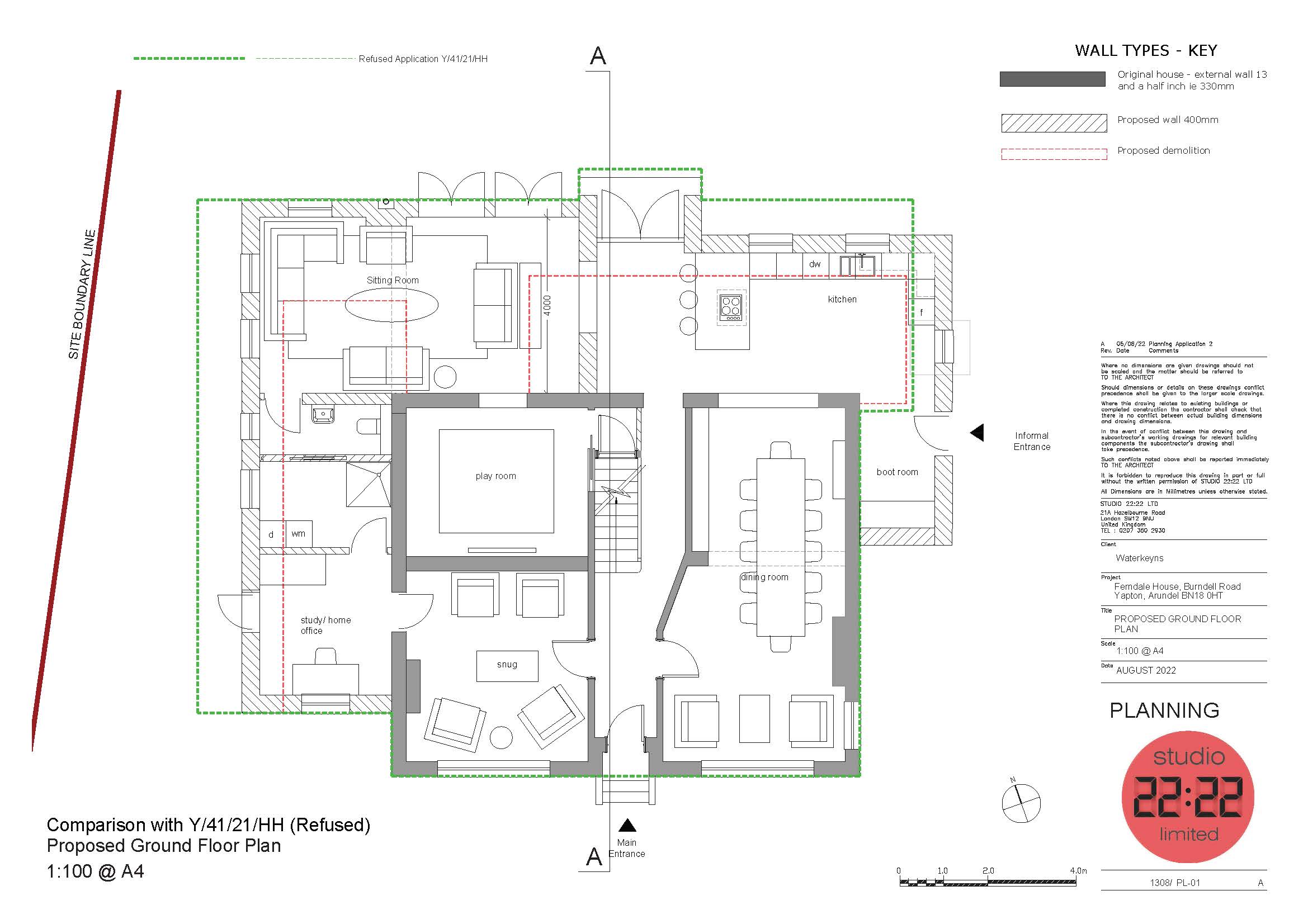
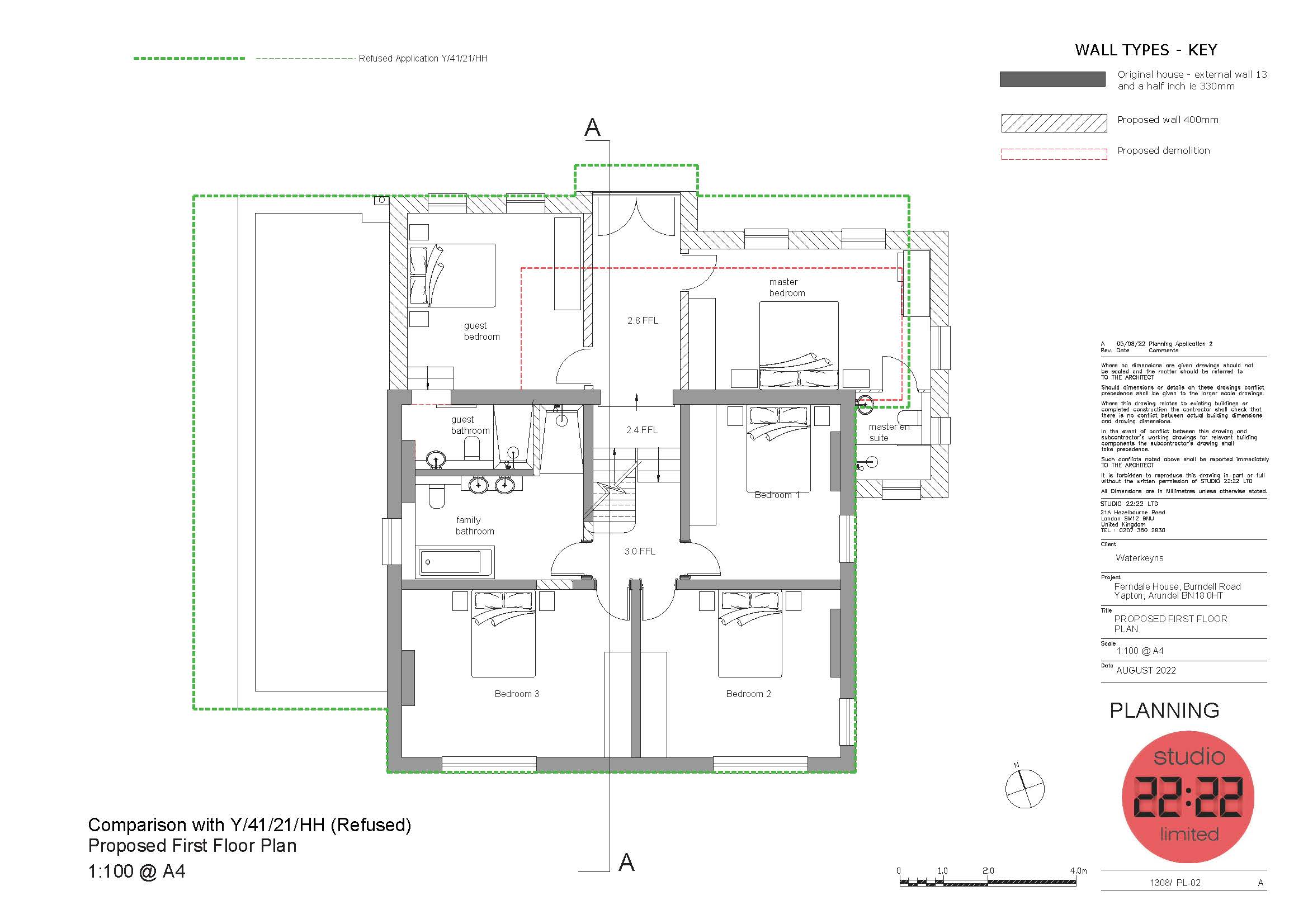
Ferndale House – Arundel

Extension to family home set in a beautiful leafy plot in Yapton, Arundel…

Leave a comment